WES LOFTS

2015

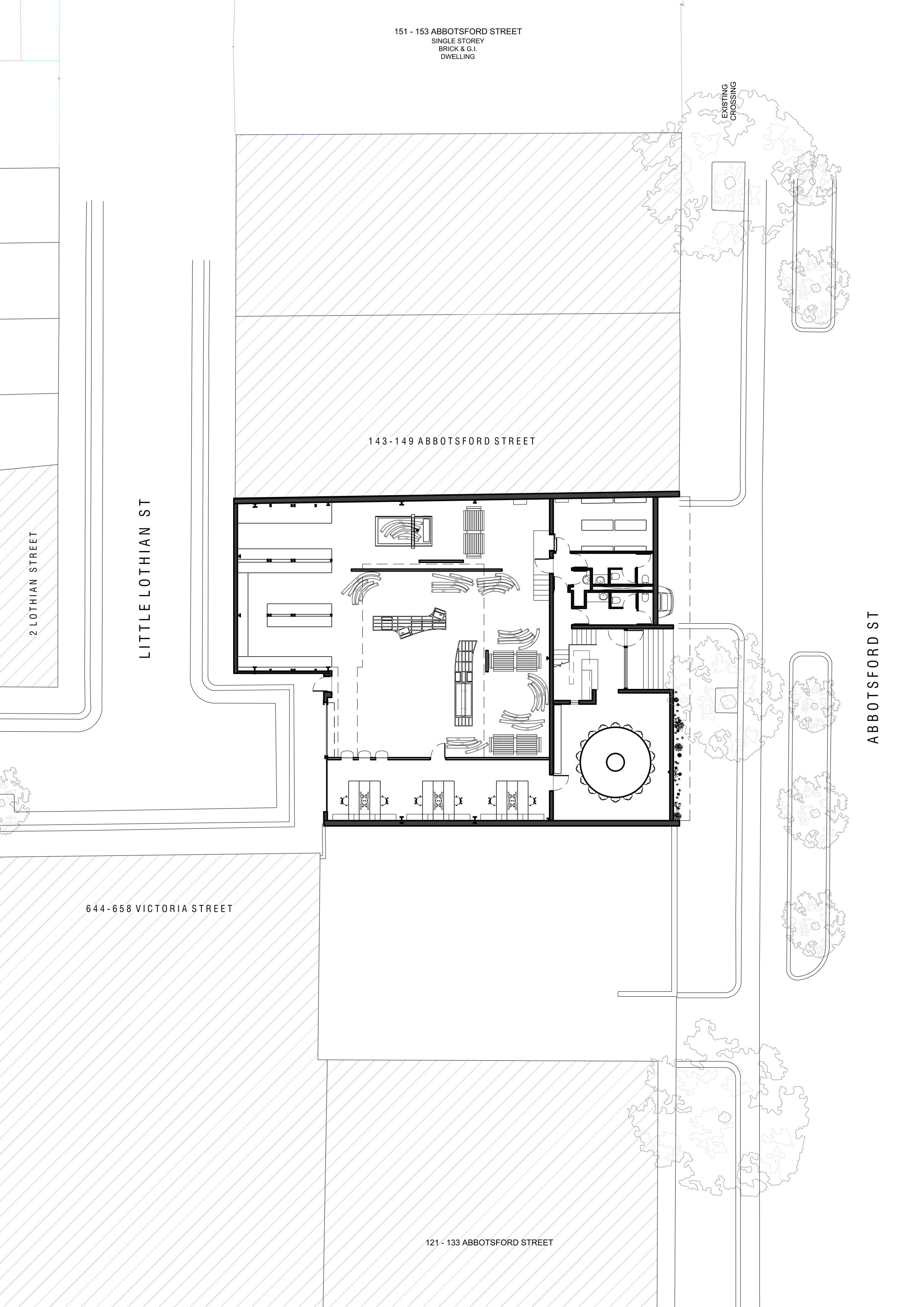
‘Conceived as a ‘c-shape’ plan, the building was thoughtfully divided in half with a shared meeting room (a Kubrick-inspired ‘War-room’), and a central double-height project space within the main volume of the warehouse.’

Wes Lofts, located in North Melbourne, was designed by Eggleston Macdonald and Secomb. It was originally commissioned by Carlton Football Club legends Wes Lofts and Ron Barassi, who, post-AFL retirement, operated a packaging business from the building. Completed in 1972, the building's design reflects the prevailing Brutalist style that swept the globe during that era. Characterised by practicality and concrete construction, these structures were so named for their robust and imposing appearance.

An ardent Carlton supporter and great-grandson of the original architect, Rodney Eggleston seized the opportunity to transform the Wes Lofts building into March Studio's headquarters in 2015. Conceived as a ‘c-shape’ plan, the building was thoughtfully divided in half with a shared meeting room (a Kubrick-inspired ‘War-room’), and a central double-height project space within the main volume of the warehouse. Visible from throughout the studio spaces this ‘factory for making’ empowers employees not only to conceptualise and model their designs but also to prototype and physically construct them, thanks to the inclusion of a CNC machine and 3D printers and plenty of room.

Wes Lofts has become more than just a place of work for March Studio: the studio's deep connection to this heritage building has allowed them to foster a unique creative environment in which hands-on experimentation and innovative approaches to construction challenge the boundaries of architectural practice.

  • OFFICE | INDUSTRIAL

  • COMPLETE

  • WURUNDJERI | NORTH MELBOURNE | VICTORIA

  • BUILDER | CBD CONTRACTING
    STRUCTURAL ENGINEER | CO-STRUCT

  • PETER BENNETTS