THE MULLET
2012
‘Rising over a split-level to a dining and living room – a compressed space that follows the roofline to hover, lift and open towards the expansive city views to the north.’
The Mullet continues March Studio’s early explorations of roof geometries to expand on the ‘big gesture’ as an organising strategy for the renewal of a typical Edwardian weather-board cottage.
The client – a building contractor and long-time March collaborator – wanted to maximise the site by upgrading the existing house with a new addition to accommodate a growing family of five. The sloping site offered a northerly aspect and potential sweeping views to the city, yet significant constraint via its heritage overlay, setbacks and height restrictions.
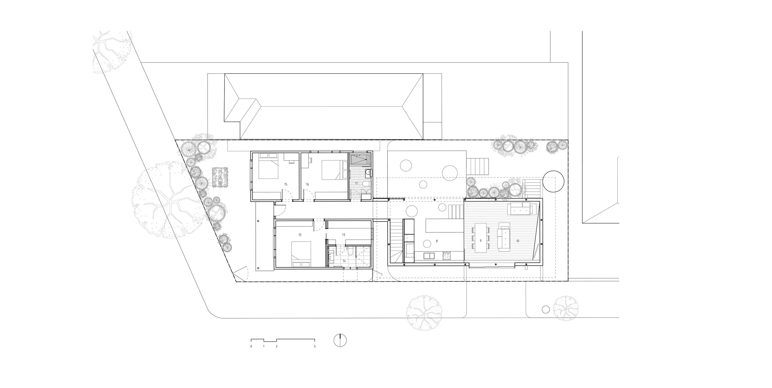
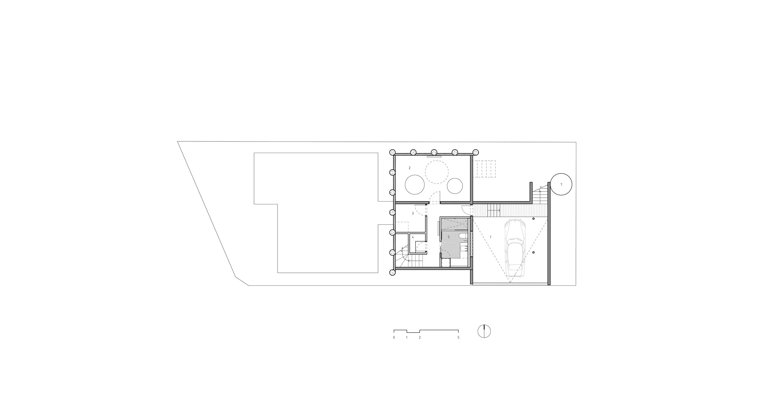
The new addition is formed by two major moves: First, to accommodate off-street parking, the site was excavated to form a concrete ‘box-like’ basement containing garage, family room, bedrooms, bathroom, laundry and sauna. These spaces are spare – concrete walls and floors, conduits and transformers exposed.
The heaviness of the ‘base’ layer is contrasted by the lightness of the ground floor level which centres around the kitchen, outdoor terrace (cast with portals to the subterranean spaces below) and rising over a split-level to a dining and living room – a compressed space that follows the roofline to hover, lift and open towards the expansive city views to the north.
From the south, the lightness of the zinc roof – essentially two planes that twist in section to catch an abundance of rainwater – reads as the ‘big gesture’, simultaneously offering an elegant contribution to the streetscape. Here, there is an interplay between the new addition and its neighbourhood as light and movement spills from the upper level’s glazed portals and patterns from timber battens cast shadows onto the street.
-
HOUSE
-
COMPLETE
-
WURUNDJERI WOI-WURRUNG | KENSINGTON | VICTORIA
-
BUILDER | BLULINE
STRUCTURAL ENGINEER | CO-STRUCT
-
JOHN GOLLINGS
-
-
2012 Winner | Alterations & Additions Award | Australian Institute of Architects VIC Awards