OMAR

2009

‘where mobile infrastructure—including custom track-mounted tables—allows for a fluid transition between the interior and the concrete yard’

In retrospect, Omar Café anticipated a broader shift toward small-scale roasting, with beans roasted and ground on site rather than sourced externally. At the time, this approach was more typical of older, established coffee houses.

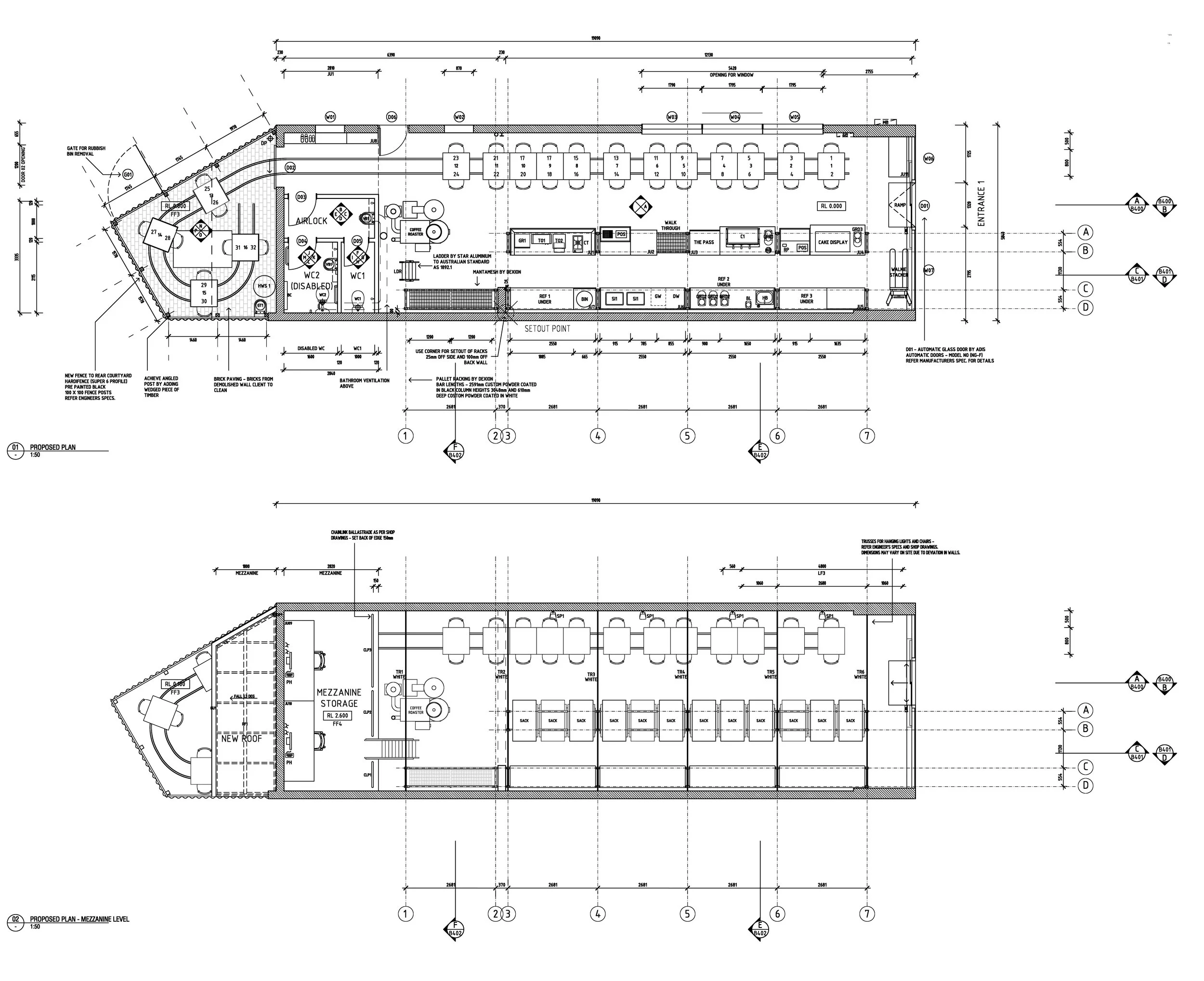
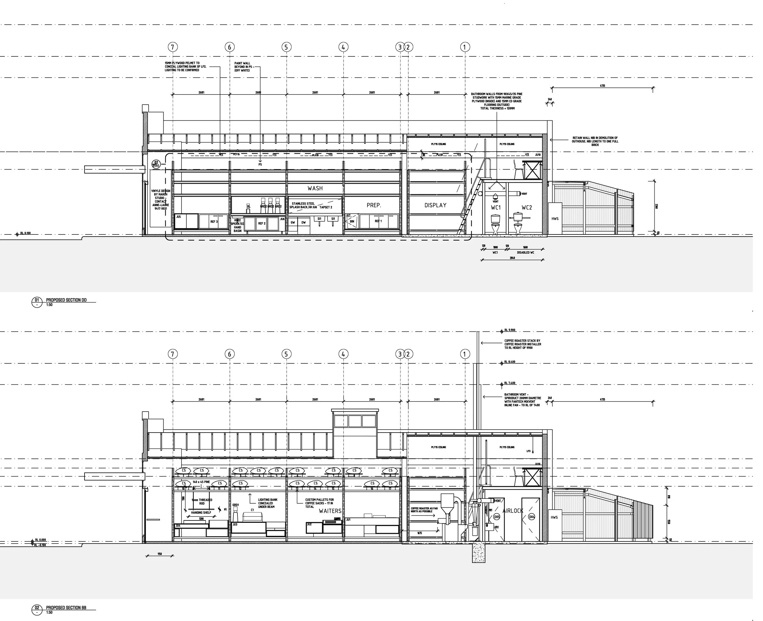
The project occupied a long, narrow corner tenancy with a raw, largely untreated concrete rear yard. Within a constrained budget, the brief called for roasting, café service, office space and outdoor seating.

The linear plan, combined with the need to store pallets of coffee beans, led to the adoption of standard pallet racking as the primary organising system. It operates simultaneously as storage, counter, preparation surface and point of sale. Typically finished in blue and orange, the racking was powder coated in black and white to establish a more cohesive material language.

This logic extends across the project. Off-the-shelf chairs were powder coated white to align with custom tables mounted on tracks, allowing them to be repositioned throughout the space and into the rear yard. Existing steel trusses were retained to reinforce the building’s shell and treated in the same manner, maintaining a consistent palette.

All joinery, the ceiling and the new bathroom are clad in CD structural plywood, consolidating the material approach. A mezzanine level accommodates a compact office, with a balustrade formed from chain-link panels, also powder coated in black.

The project brings standard and custom elements into a single system, where constraint, utility and material consistency define the space.

  • CAFE

  • COMPLETE

  • BUNURONG | GARDENVALE | VICTORIA

  • BUILDER | CBD CONTRACTING

  • PETER BENNETTS