KAPITOL GROUP HQ

2021

“A workplace that redefines the post-pandemic office—balancing flexibility, material richness, and wellbeing to create a high-performance environment grounded in both culture and craft.”

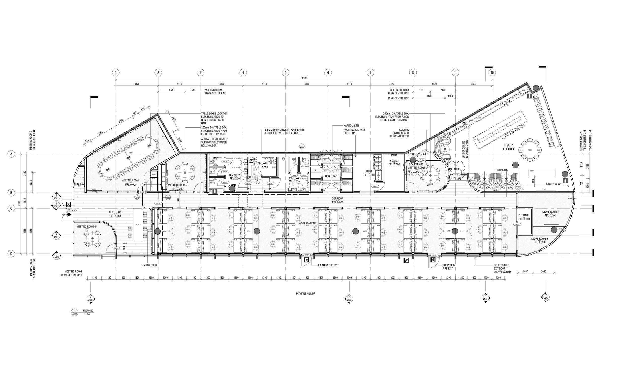
As Melbourne’s largest builder working with Australia’s leading architects, Kapitol Group appointed March Studio to design its new CBD headquarters. The result is a refined, high-performance workplace that reflects the company’s reputation as one of Melbourne’s most respected construction firms.

Kapitol’s workplace responds directly to the post-pandemic office, rethinking how people gather, collaborate, and focus. Open-plan studios, activity-based settings, and conference spaces are seamlessly integrated to create a cohesive and highly functional environment. Flexible working arrangements allow the business to adapt over time, supported by a suite of on-site amenities that prioritise both productivity and wellbeing.

A biophilic design approach underpins the interior, with integrated greenery and natural materials establishing a calm, grounded atmosphere. Spotted Gum Armour panels introduce warmth and tactility, reinforcing a connection to the material language of construction.

In 2021, Kapitol Group was recognised as one of Australia’s best places to work by WRK+. This workplace stands as a clear expression of that ethos, setting a new benchmark for office design in Melbourne.

  • OFFICE

  • COMPLETE

  • WURUNDJERI | DOCKLANDS | VICTORIA

  • BUILDER | KAPITOL GROUP

    BUILDING SURVEYOR | du CHATEAU CHUN

    ACOUSTICS | STANTEC

    SERVICES | ASCOT

    LIGHTING | ELECTROLIGHT


  • SHARYN CAIRNS