JACKALOPE PAVILION

2017 - 2019

The Jackalope Pavilion was conceived as a temporary gallery to house Random International’s Rain Room, an artwork defined by immersion, control, and ephemerality. Positioned above the Prince of Wales Hotel car park in St Kilda, the project transforms an overlooked piece of urban airspace into a cultural platform, framing architecture as both infrastructure and event.

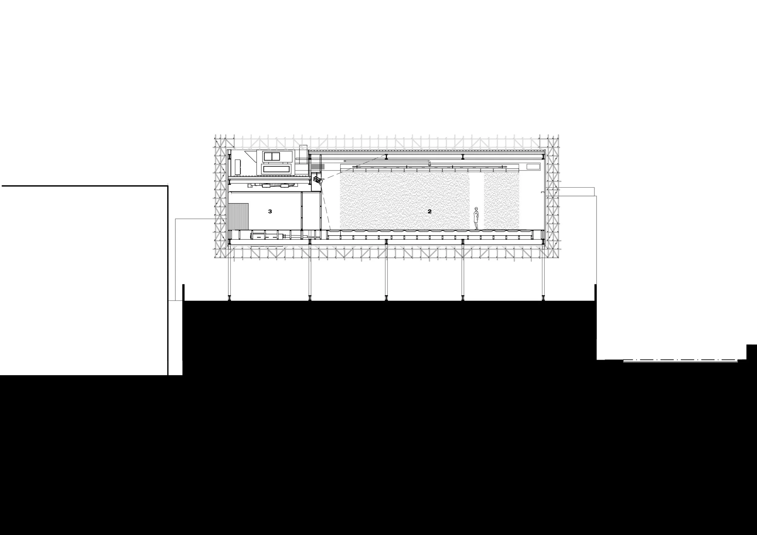
At March Studio, there is an ongoing preoccupation with the celebration of the accident, an architecture that appears almost ‘undesigned’, where texture, irregularity and misalignment are not resolved, but embraced. The pavilion continues this line of enquiry, exploring the notion of the glitch: an architecture that oscillates between precision and imperfection. While the structural system is rigorous and highly coordinated, it is simultaneously deployed as a formal device. The externalised scaffolding exoskeleton, constructed from standard tube-and-fitting components, becomes both support and surface, generating a soft, cloud-like volume whose edges dissolve into Melbourne’s often overcast sky.

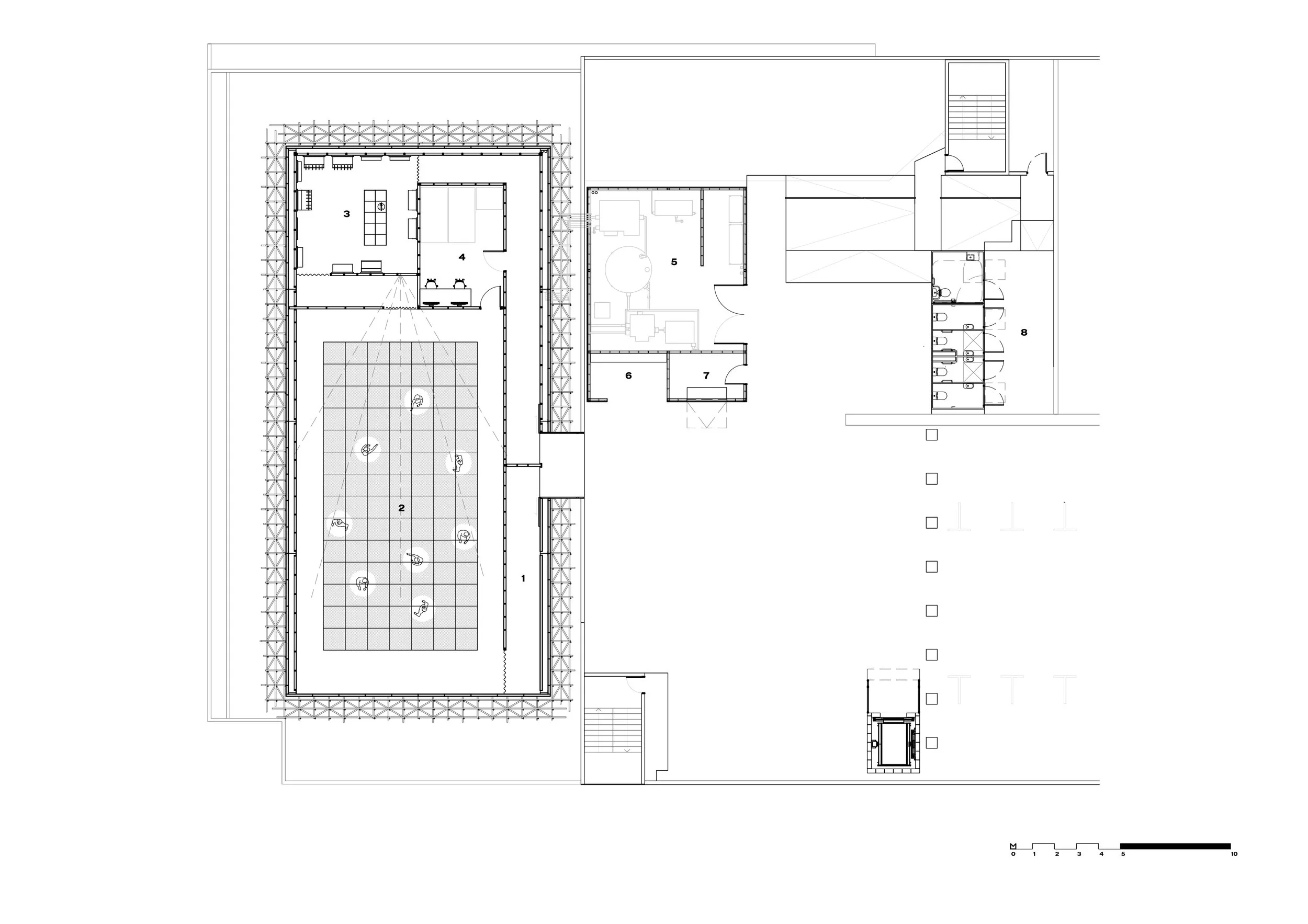
Beneath this atmospheric reading sits a highly engineered project. The pavilion is organised around a 100 square metre field of controlled rainfall, with 2,500 litres of water discharged through thousands of individually programmed nozzles. Water is captured through a grated floor into an underslung collection system, before being filtered, treated, and continuously recirculated via a coordinated network of pumps, softeners, and control equipment. In this sense, the building operates as an inverted enclosure, where keeping water in, rather than out, becomes the primary architectural and technical challenge.

The constraints of the site, its ‘wedding cake’ planning envelope, structural limitations, and requirement for compliant access, led to the building being elevated, perched lightly above the car park structure. This move enables direct access from the upper level while also contributing a new lift, leaving a lasting piece of infrastructure beyond the life of the project.

Temporality is embedded not only in the experience of Rain Room, but in the construction of the pavilion itself. The building is conceived as a kit of parts: bolted steel, demountable Bondor panels, and off-the-shelf scaffolding components that can be unbolted, relocated, and reassembled elsewhere. This approach minimises waste and foregrounds reuse, positioning the pavilion as an architecture that is not only temporary, but deliberately mobile.

Between these spaces, the supporting functions typical of any gallery are carefully integrated. A ticket booth marks arrival, with lockers provided for visitors, alongside accessible amenities. Integrated wayfinding, developed with our friends at Studio Ongarato, guides the experience. The obligatory gift shop completes the sequence, conceived entirely in folded aluminium as a lightweight, durable and reconfigurable retail environment.

At once infrastructural and atmospheric, precise and unstable, the Jackalope Pavilion mediates between art, engineering, and time, an architecture that performs, disappears, and ultimately moves on.

  • GALLERY

  • BUILT - 2019

  • BUNURONG | ST. KILDA

  • CLIENT | JACKALOPE HOTEL GROUP
    BUILT | COD BUILD
    STRUCTURAL ENGINEER | STANTECH
    BUILDING SURVEYOR | JOHN GRIMBOS

  • PETER BENNETTS

  • 2021 | Victorian Architecture Awards | Small Project Award

    2021 | National Architecure Awards | Small Project Award

    2020 Winner - Award for Excellence : Design & Development Awards City of Port Phillip (Non-Residential Development)

    2020 Winner - Good Design Award Gold - Architectural Design : Good Design Australia