COMPOUND HOUSE
2017
’Heroic and industrial, more reminiscent of warehouses and bridges than suburbia, Compound house draws inspiration from the client's industrial background in steel fabrication’
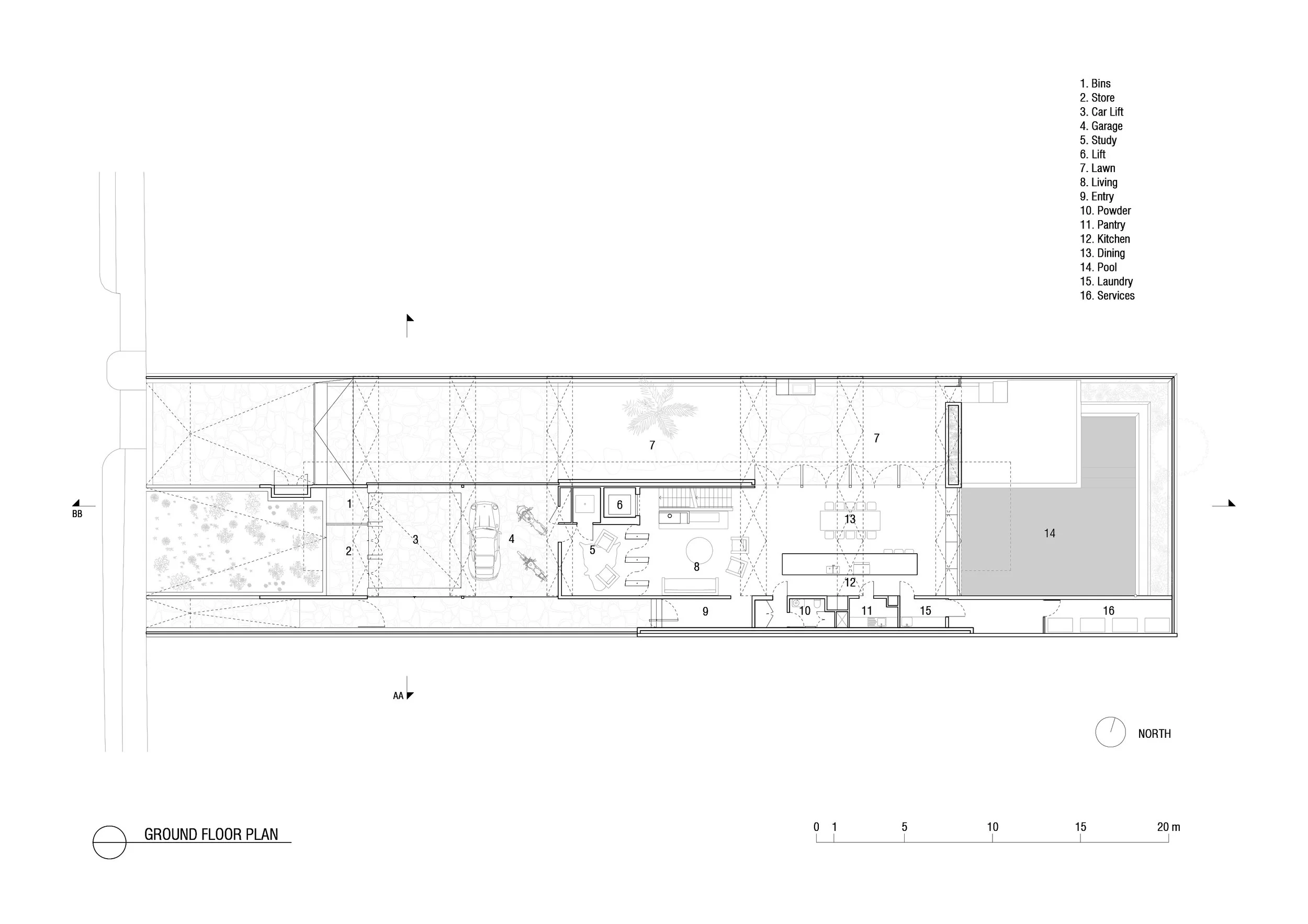
Compound House was conceived as a response to the defensive suburban condition that surrounds it. Many of the neighbouring dwellings present themselves as closed compounds to the street, large houses that withdraw behind walls, gates and garages. Rather than reinforcing this pattern, the project seeks to invert it. The building steps back from the street to create an uninterrupted slope of native grasses, offering openness and a softer civic presence within the neighbourhood.
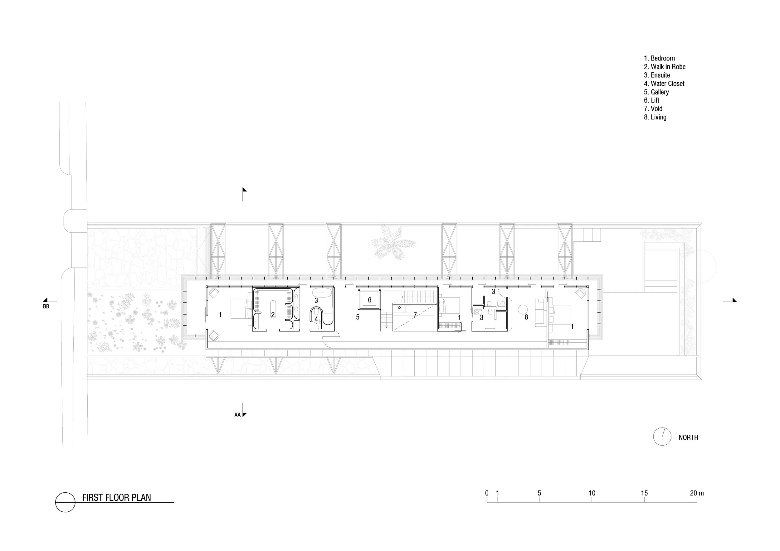
The house is organised as a simple but expressive composition of heavy and light elements. A grounded base of precast and in situ concrete retaining walls anchors the building into the sloping site, negotiating planning constraints while embedding much of the program into the terrain. Above this base, a long rectilinear volume containing the bedrooms appears to hover over the landscape. The contrast between the weight of the concrete plinth and the apparent lightness of the suspended upper form establishes the primary architectural gesture.
Six oversized steel trusses support the elevated volume and span across the main living spaces below. Their scale and exposed character deliberately reference industrial construction such as warehouses, bridges and fabrication yards, drawing on the client’s background in steel manufacturing.
These trusses form both structure and spatial identity, organising the open plan living, dining and kitchen spaces beneath while extending outward to cantilever over the northern courtyard.
Encasing the upper volume is a veil of undulating copper screens. This skin performs both pragmatic and atmospheric roles, filtering sunlight throughout the day, providing privacy to the bedrooms within, and animating the facade with shifting patterns of light and shadow.
The screen was developed through a process of prototyping with the client, using CNC fabrication and a folded clip system that allows thin copper strips to attach to a stainless steel frame without corrosion between dissimilar metals.
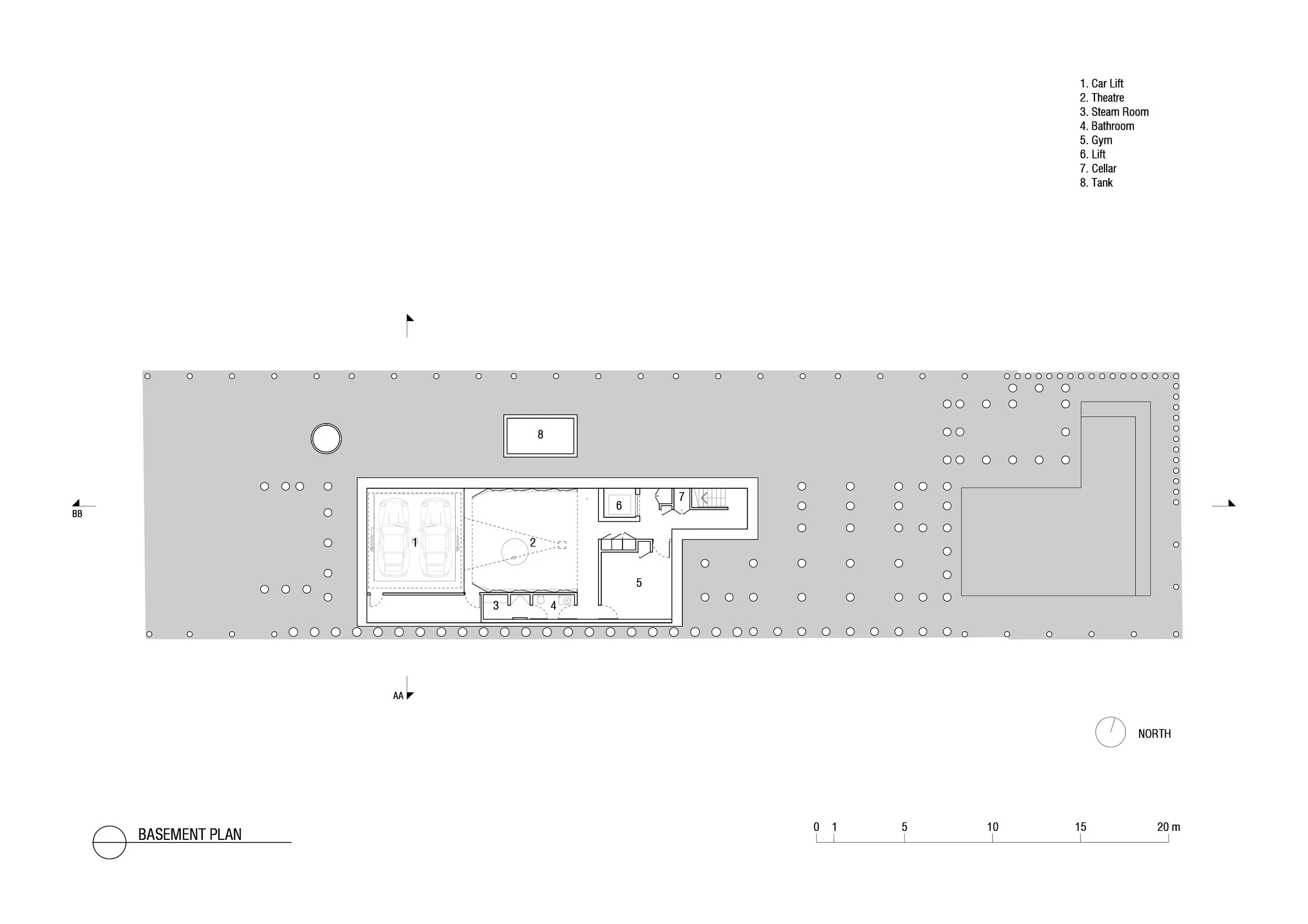
Below ground, a more introspective world unfolds. A garage, screening room and ancillary spaces form a darker, cave like interior that reflects the client’s passion for vintage cars and cinematic experience.
Compound House explores the productive tension between engineering and domesticity, industry and landscape. Through a deliberate use of structure, material experimentation and technological ingenuity, the project reimagines suburban living, transforming what might have been another defensive compound into an open, expressive and generous architectural presence within its context.
-
HOUSE
-
BUILT | 2016
-
BUNURONG | BRIGHTON
-
MARCH STUDIO
CBD CONTRACTING -
-
DAN PRESTON
ON BEHALF OF LOCAL PROJECT
-
2018 Winner | Architecture Masterprize Award | Los Angeles
2018 Winner | Residential Award | Australian Institute of Architects National Award
2018 Winner | Harold Desbrowe-Annear Award | Australian Institute of Architects | VIC Awards
2017 Winner | 12th Annual Bayside Built Environment Awards | Best of the Best
2017 Winner | 12th Annual Bayside Built Environment Awards | Best New Building
2017 Winner | 12th Annual Bayside Built Environment Awards | Most Creative
-