CHESSELL STREET

2011

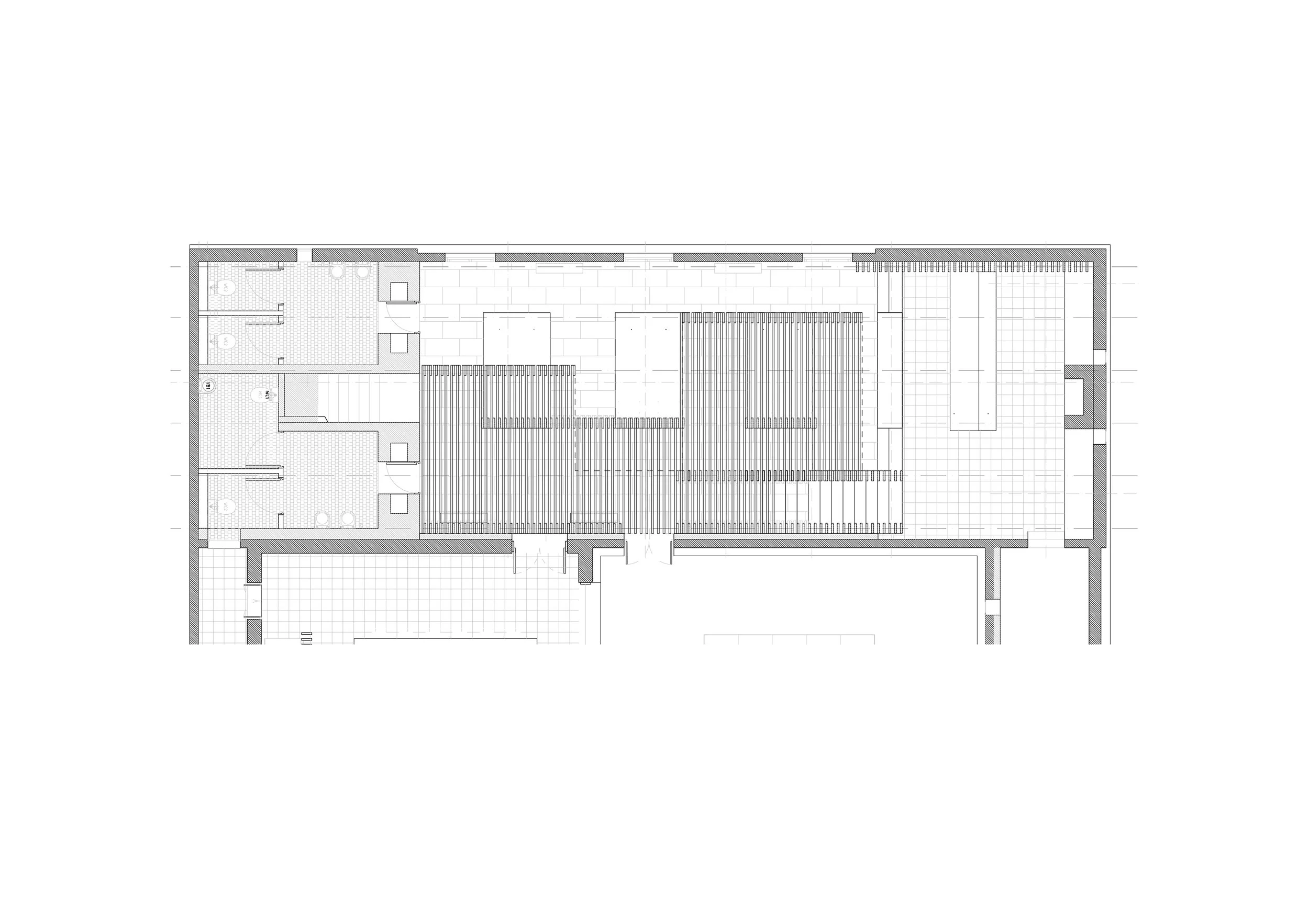
‘The interior's grid layout draws inspiration from the dimensions of a standard lever arch folder, thoughtfully accommodating the storage of 3000 physical folders — a critical necessity for the client's operations.’

Nestled within the iconic former City Tiler building, the Chessell Group office stands as a contemporary workplace in Melbourne’s Southbank. Boasting a two-storey layout, it offers private offices for directors and an open-plan workspace accommodating six staff members. At the heart of this office's uniqueness lies its pioneering construction approach.

Engineered beams crafted from sustainable Carter Holt Harvey timber sourced from New Zealand grace the entire interior. This custom joinery integrates shelving, desks, stairs, floors and ceilings into a seamless and visually striking design, marking a groundbreaking construction method in Australia. The project is distinctive for the way it is effectively stacked from one side of the room to the other and laminated together to form one giant piece of solid, functional furniture.

Sustainability took centre stage during the design process. The use of natural timber and meticulous detailing ensures materials' longevity, allowing for potential future re-use or salvage during decommissioning. The interior's grid layout draws inspiration from the dimensions of a standard lever arch folder, thoughtfully accommodating the storage of 3000 physical folders — a critical necessity for the client's operations. The outcome is an interior that excels in functionality, simplicity and efficiency. The office's harmonious blend of natural timber and innovative design embodies the values of sustainability and forward thinking, creating an inviting and inspiring workspace for the Chessell Group.

  • WORKPLACE

  • COMPLETE

  • WURUNDJERI | MELBOURNE | VICTORIA

  • STRUCTURAL ENGINEER | CO-STRUCT
    BUILDER | CBD CONTRACTING

  • MARK ASHKANASY