BOBHUBSKI

2016

“A 27-square-metre interior reconfigured as a complete system; compressed, adaptive and cinematic, where every element is embedded and nothing is wasted.”

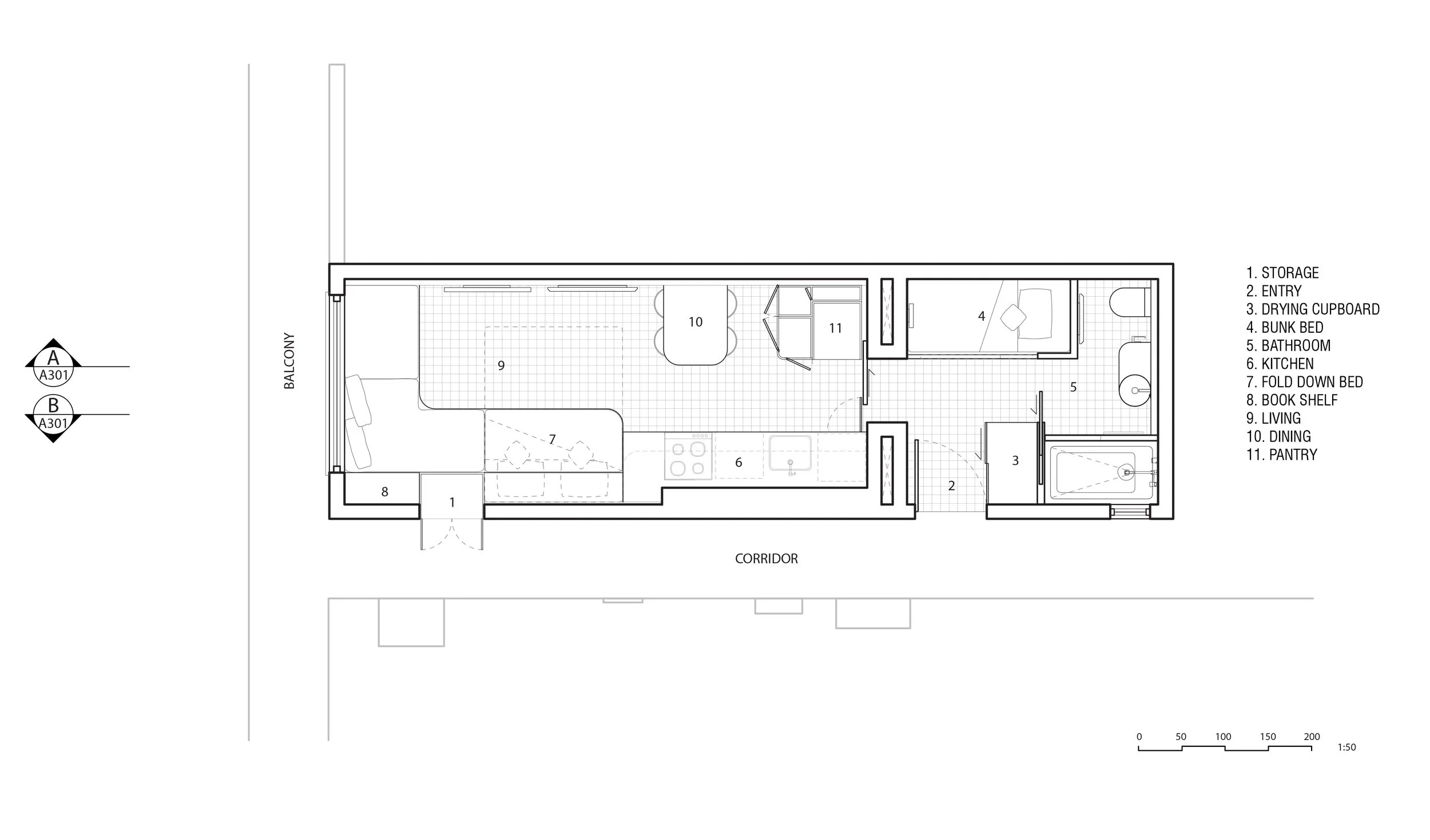
Located in Falls Creek within the Victorian Alpine National Park, Bobhubski is a compact alpine retreat that transforms a 27-square-metre studio into a highly efficient spatial system.

At this scale, design becomes less about rooms and more about relationships. Every element is embedded, layered and interdependent, with storage, services and occupation compressed into a tightly coordinated interior. Ski equipment, drying spaces and sleeping zones are integrated directly into the fabric of the walls, allowing the space to operate as a continuous, adaptable environment rather than a series of discrete functions.

The project draws on the logic of capsule architecture, where constraint drives clarity. Curved geometries soften the limits of the envelope, maximising movement while reducing visual friction. Elements are nested, concealed or revealed as required, creating a space that expands through use rather than size.

A large curved window acts as both aperture and interface, framing the alpine landscape as a constantly shifting backdrop. Internally, a programmable light ceiling modulates atmosphere, operating as an artificial sky that adjusts to time, mood and occupation.

Moments of intensity are deliberately inserted. Sleep pods and the bathroom introduce colour and contrast within an otherwise restrained palette, while a concealed plunge bath accessed through a stainless-steel hatch reinforces the project’s layered and cinematic character.

Bobhubski is not organised as a conventional apartment. It is a calibrated system for occupation—one that prioritises efficiency, adaptability and experience within an extremely limited footprint. The result is a space that performs beyond its size, balancing the pragmatic demands of alpine living with a heightened, almost otherworldly interior condition.

  • CHATLET

  • COMPLETE | 2016

  • JAITMATANG | FALLS CREEK | VICTORIA

  • BUILDER | BOBBY
    STRUCTURAL ENGINEER | BOBBY

  • PETER BENNETTS

  • 2017 Winner | Houses Awards Apartment or Unit