AESOP THE ROCKS

2015

“The project resolves heritage constraint through autonomy, a self-supporting system that touches nothing, yet carries everything, and can be dismantled, relocated, and reused beyond the life of the tenancy.”

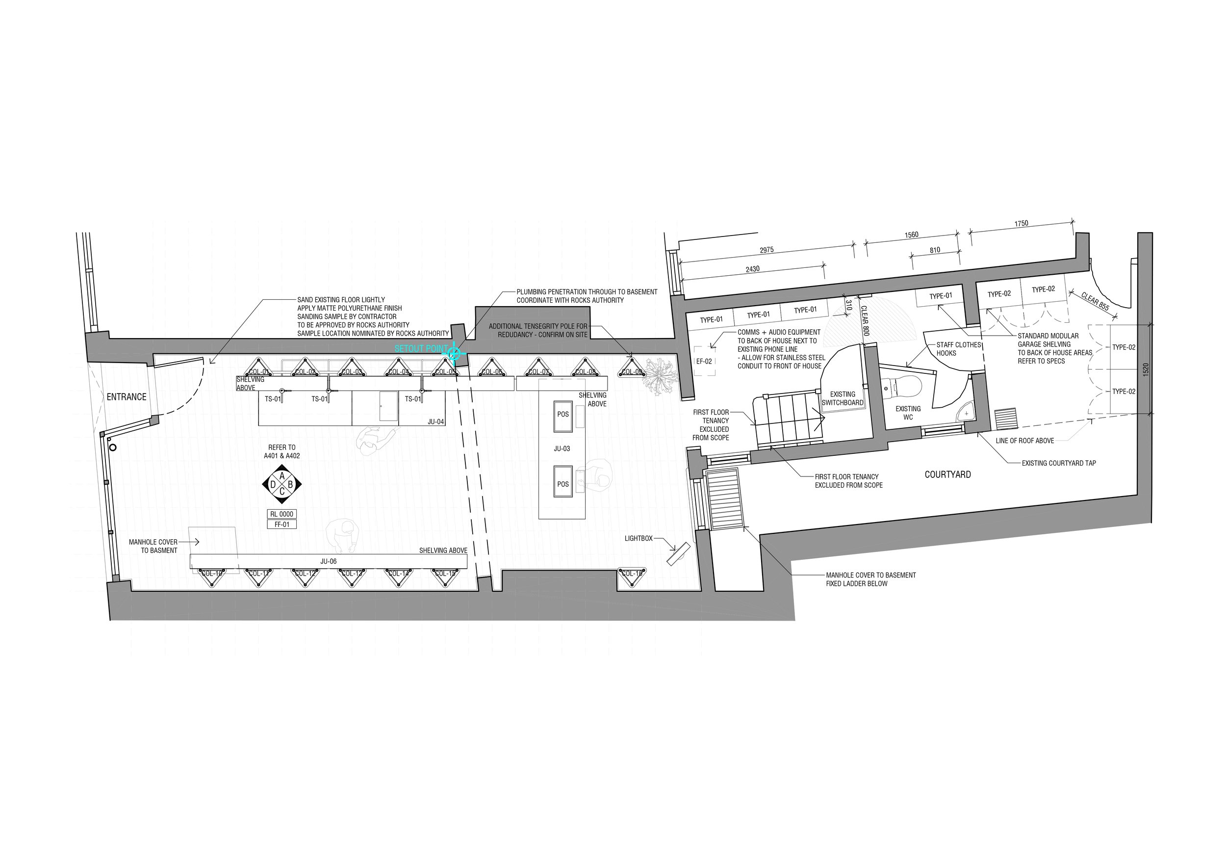
Located within The Rocks, on Gadigal Country, the project occupies one of the earliest sites of European settlement in Australia. The existing building carries a layered history, from its association with colonial architect Francis Greenway to its later life as a series of small commercial tenancies. Today, it remains tightly protected under heritage controls.

The primary design driver emerged from these restrictions. The heritage listing precluded any physical intervention to the existing fabric; no fixings to walls, floors, or ceilings were permitted. Even minor insertions were disallowed. As a result, the only sanctioned modification was the application of a heritage-approved white paint, allowing the patina and narrative of the building to remain legible.

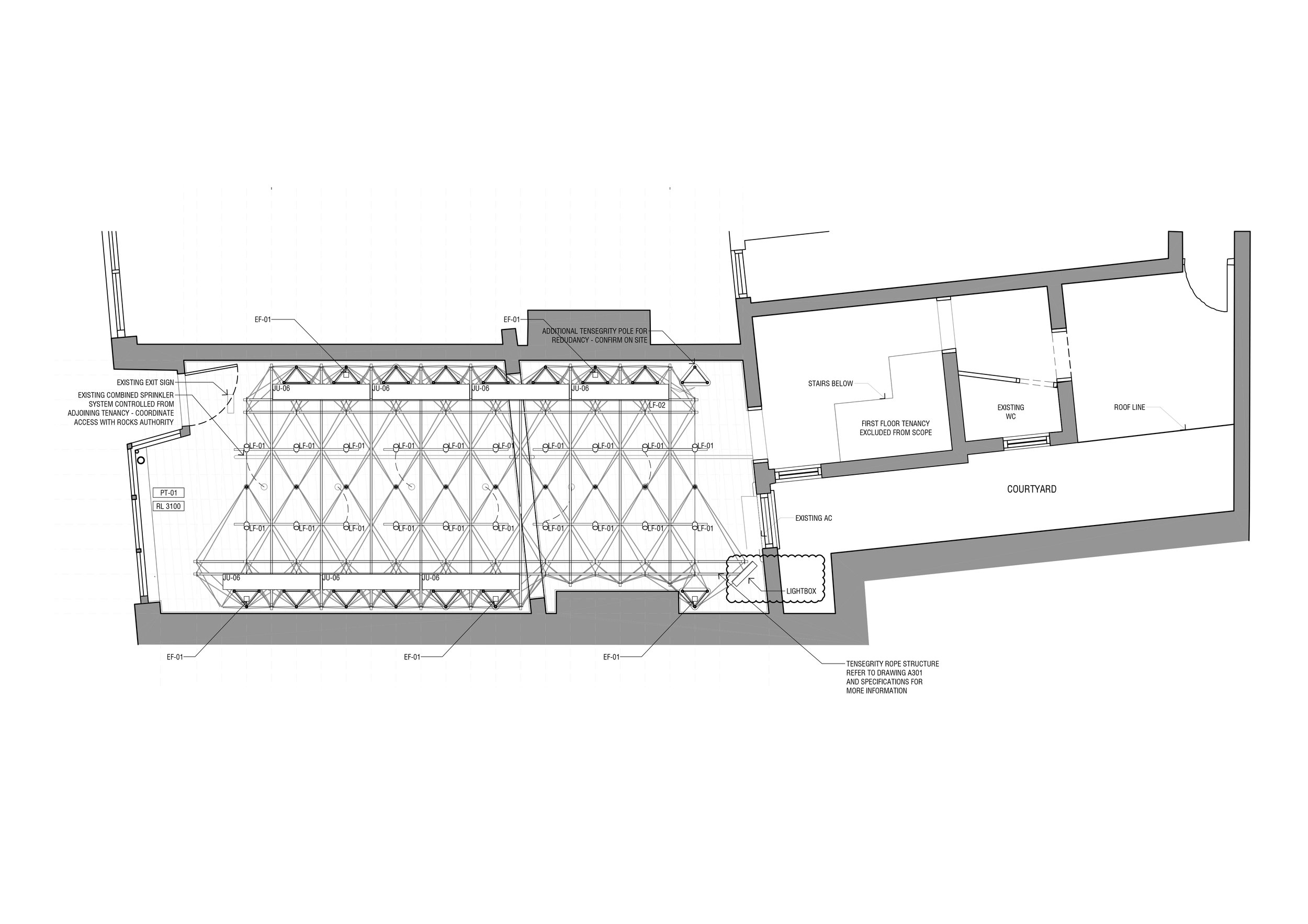
In response, the project adopts a self-supporting system, drawing on the principles of tensegrity. Inspired in part by Buckminster Fuller, the structure is composed of a network of compression and tension elements that stabilise one another. Natural aluminium joints and custom-turned timber dowels operate in compression, while a tensile field of orange nylon rope provides the necessary structural continuity.

This system establishes an internal framework capable of supporting shelving, washplanes, and services without touching the heritage envelope. It is both structure and fit-out, resolving the project entirely within its own logic. Custom-designed taps and sinks, formed in aluminium, are integrated into this assembly, extending the material language and reinforcing the autonomy of the system.

The language of the system is intentionally aligned with its harbour context. The vertical dowels read as masts, while the tensioned rope evokes rigging, embedding the logic of sailing within the architecture. In this sense, the tensegrity system is not only structural but also cultural, drawing from maritime traditions deeply embedded in Sydney Harbour.

The orange nylon rope, typically used as rescue line and certified to meet international UIAA and CE safety standards, introduces both a visual intensity and a material authenticity. Its presence references working harbour conditions, while its performance characteristics reinforce the integrity of the system.

Crucially, the entire installation is independent of the building fabric. It can be disassembled, relocated, and reassembled elsewhere, extending its lifespan beyond the constraints of this tenancy. In this way, the project not only preserves the heritage interior, but also proposes a model for reuse, where architecture operates as a transportable system rather than a fixed intervention.

  • RETAIL

  • COMPLETE 2015

  • GADIGAL COUNTRY | SYDNEY, NEW SOUTH WALES

  • BUILDER | CBD CONSTRUCTION
    STRUCTURAL ENGINEER | CO-STRUCT

  • PETER BENNETTS