AESOP DONCASTER III

2026


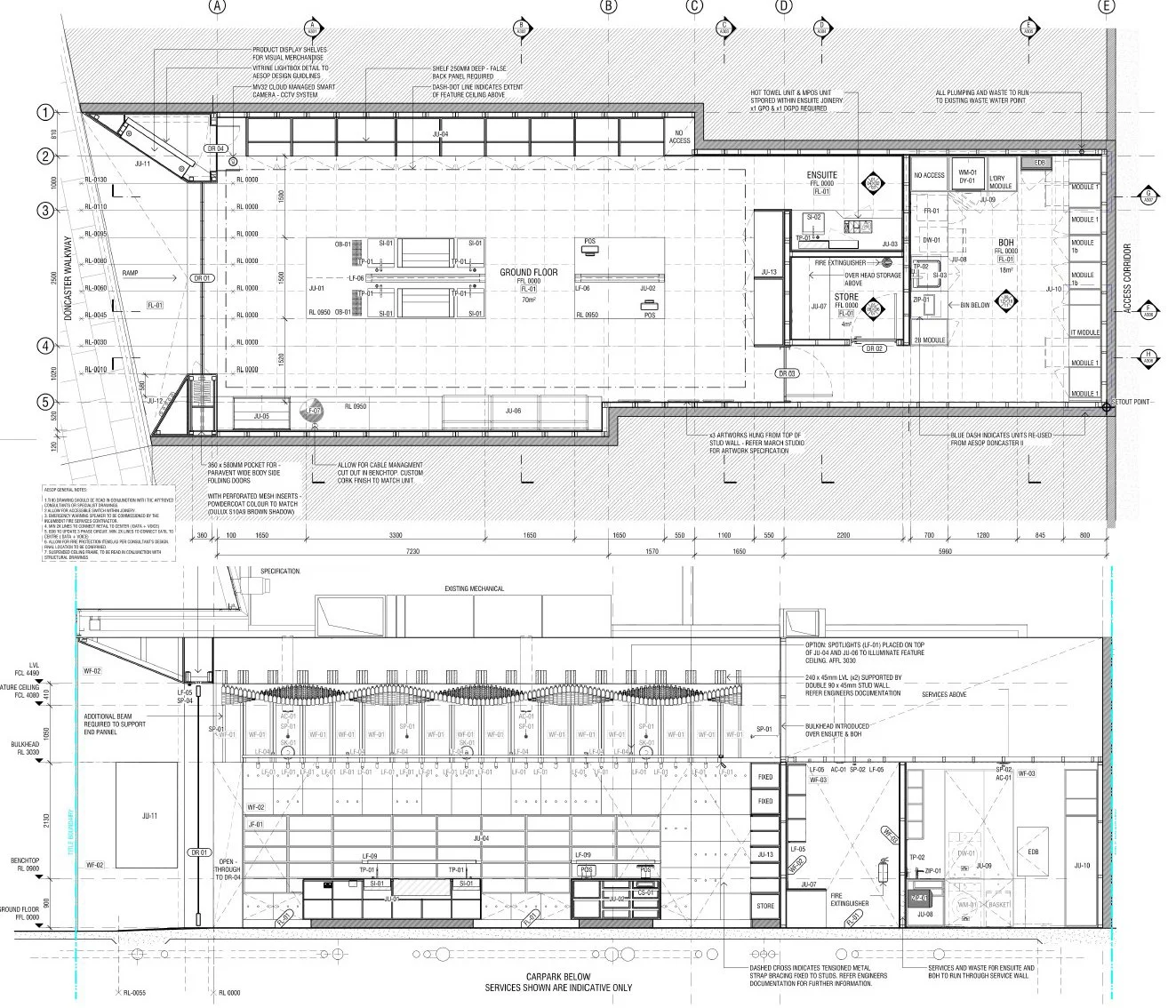
In 2008, March Studio transformed 7,560 surplus amber bottles from a limited-run Aesop olive oil release into an undulating ceiling installation for the Adelaide store; one of the earliest collaborations between Aesop and the then fledging Melbourne architecture studio. The otherwise unused bottles were suspended on threaded rods from particle-board panels, forming a luminous canopy above the retail floor.

The installation was conceived as both sculpture and system. Fully modular, demountable and palletised, it was designed to travel. Custom crates transported the ceiling from Melbourne to Adelaide and, upon arrival, were repurposed as counters, shelving and storage. When the lease expired, the ceiling could be dismantled, repacked into its original crates and redeployed to another site. Direct reuse, rather than recycling or downcycling, was embedded in the design from the beginning.

The reality is that retail architecture is typically bound to the lifespan of a lease; fit-outs are discarded when leases expire. This project proposed an alternative model. By conceiving the store as a transportable kit of parts, the architecture could migrate from site to site, allowing the fit-out to endure beyond its first location. Sustainability is achieved — and celebrated — not through material substitution, but through strategic foresight: extending the life of the system itself.

Following the Adelaide store’s closure in 2014, the bottles were dismantled and stored in Melbourne for over a decade. Their re-emergence in Aesop’s reimagined Doncaster store marks March Studio’s twentieth collaboration with the brand; both a continuation and an amplification of the original idea, and a renewed chapter in an eighteen-year relationship.

Installed within an exceptionally high retail-centre tenancy, the bottles once again float overhead, their patina and imperfections preserved as evidence of time, memory and deliberate reuse.

Aesop Doncaster reframes retail architecture as a transportable system — designed for longevity, adaptability and renewal.

  • RETAIL

  • COMPLETED 2025

  • WURUNDERI | DONCASTER

  • IN COLLABORATION WITH AESOP

    BUILDER | EMAC

    LIGHTING DESIGN | AMBIENCE LIGHTING

    STRUCTURAL | CO STRUCT

  • CONSTRUCTION IMAGES | PROVIDED BY AESOP

    COMPLETED PHOTOS | PETER BENNETTS